Suereth Party Deck
Portland, Oregon — 2023A premium deck design for a unique Portland property.
Services
Architecture
Interior Design
Permitting
Architecture
Interior Design
Permitting
(In Construction)
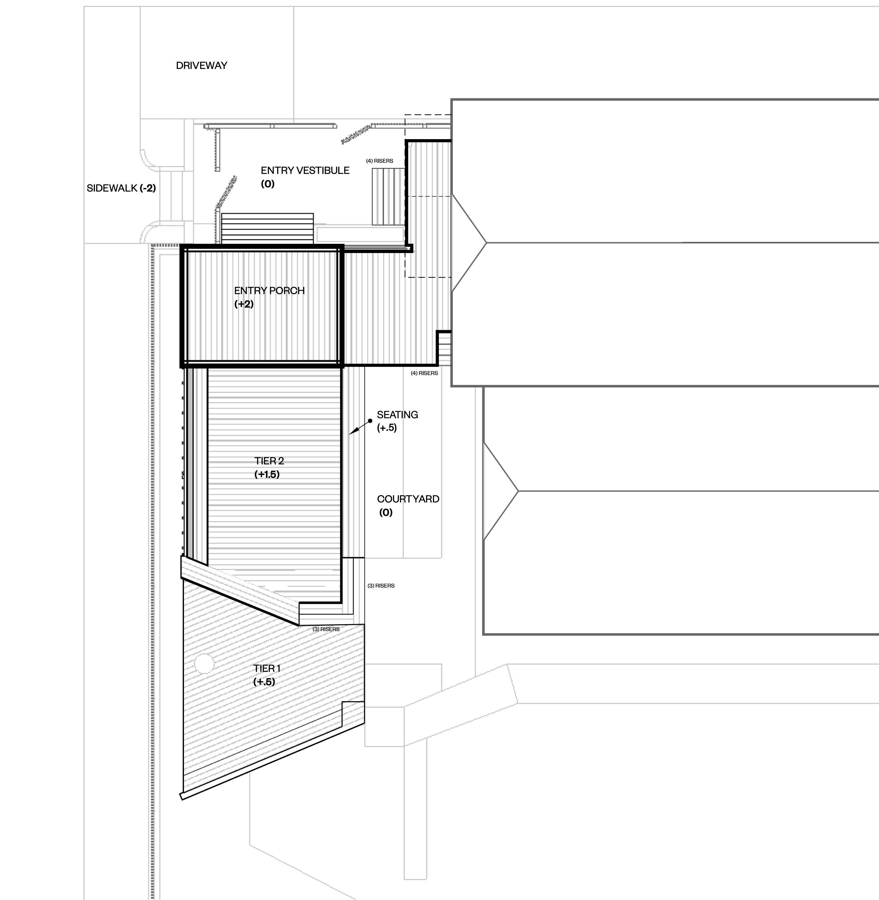
This deck party is way up in the front. Occupying a very unique, large North Portland lot (10,000 SF), the unusable front yard space was converted into a more functional and playful deck space. With great southwestern exposure and a beautiful dogwood centerpiece, this large deck cascades down from the main level floor height to the grade of the yardspace.
From the driveway or street, visitors now step 2’-0” up onto the front porch in order to access the “threshold” of the porch gable onto the deck. This fixed the previous issue of visitors being able to walk straight onto the property without crossing a line, ensuring privacy and a sense of arrival.
This deck party is way up in the front. Occupying a very unique, large North Portland lot (10,000 SF), the unusable front yard space was converted into a more functional and playful deck space. With great southwestern exposure and a beautiful dogwood centerpiece, this large deck cascades down from the main level floor height to the grade of the yardspace.
From the driveway or street, visitors now step 2’-0” up onto the front porch in order to access the “threshold” of the porch gable onto the deck. This fixed the previous issue of visitors being able to walk straight onto the property without crossing a line, ensuring privacy and a sense of arrival.
We wrapped it around a central “courtyard” space that provided daily direct access to the sideyard orchard and the workshop in the rear.

Slat density studies


Conceptual framing plan.



